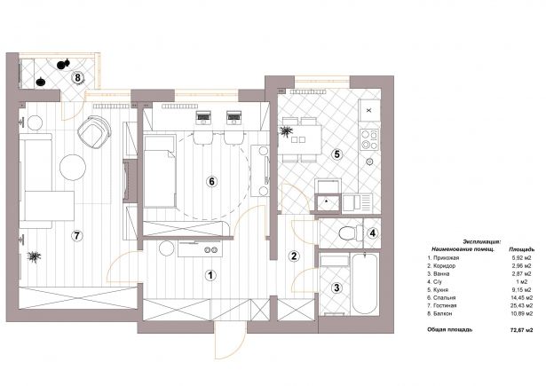
Где традиционно царят мода и порядок? Конечно, в комнатах прекрасных леди. Миссия их организовать в просторной двухкомнатной квартире площадью 75 м² была выполнена в сердце Урала. Расстояние оказалось не помехой для продуктивного творчества и я, дизайнер в Одинцово, взялась за усовершенствование площади в далеком Екатеринбурге.
Гардеробная – центр притяжения в девичьей квартире – была создана путем разделения гостиной на две функциональные зоны. Вторая часть пространства превратилась в комфортабельную спальню для мамы маленьких принцесс.
Мы отделили метровую зону белой перегородкой, что позволило избавиться от эффекта уменьшения пространства гостиной. Органичные раздвижные двери едва заметны на общем фоне, поэтому не отвлекают внимания гостей от жилой части помещения.
У окна расположили удобный угловой диван и современную картину за ним. Обои в вертикальную полоску на этой стене призваны визуально «поднять» потолок негабаритной комнаты. По бокам в монтированных коробах предусмотрена скрытая подсветка. При выключенном основном освещении она будет создавать атмосферу релакса. Напротив дивана идеально вписался в антураж уюта электрокамин, над ним – тончайший телевизор. По бокам в небольших нишах расставлены комоды и навесные полки с элементами декора и книгами. Такое решение позволило значительно сэкономить полезную площадь. Завершают композицию стильное кресло и торшер в стиле минимализма.
Особое внимание я уделила детской комнате. Две маленькие принцессы имеют все необходимое для досуга, отдыха и обучения: личные письменные столы, шкафы и кровати. Спальные места организованы по типу «2 в 1» – нижняя часть задвигается, чтобы освободить дополнительное пространство. Концепция естественной освещенности поддерживается неброскими потолочными лампочками, бра и светлыми тонами стен. Трендовый сегодня кипенно-белый тон является цветовой доминантой в мебельном ансамбле, визуально расширяя пространство и создавая атмосферу чистоты и свежести. Думаю, малышкам придется по вкусу идея украсить пространство возле кровати изображениями трепещущих бабочек.
Если вам понравился дизайн квартиры, в Одинцово и Москве я работаю постоянно. С удовольствием возьмусь организовать комфортный и уютный интерьер для большой семьи, холостяка или пожилой пары. Обращайтесь!
















