Какой должна быть квартира современной бизнес-леди?
- Комфортной – ведь на отдых не так уж и много времени.
- Продуманной – все под рукой.
- Зонированной – все имеет свое четкое место.
- Уютной – это жилище леди, и об этом не стоит забывать J
Именно такая реализованная задача представлена в портфолио дизайнера, Одинцово и Москва для которого основное место работы.
Даже когда времени на уборку совсем не остается, женщине хочется наслаждаться порядком в красиво обставленном доме. Именно поэтому в этой квартире мы предусмотрели большое количество шкафов для хранения вещей. Место нашлось для всего:
- посуду разместили в сервантах обеденной зоны,
- книги – в классических стеллажах библиотеки,
- верхнюю одежду и хозяйственные принадлежности спрятали в прихожей,
- повседневные предметы гардероба и косметика аккуратно расположили в спальне.
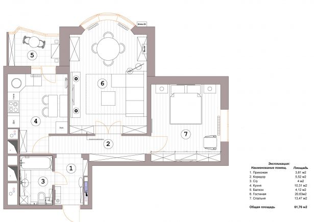
Функциональное зонирование
Квартира средних размеров – 70 , поэтому перед нами стояла цель максимально эффективно использовать пространство.
В гостиной, помимо стильного дивана и белоснежного комода с телевизором, гостей встречает небольшая обеденная зона с круглым столом и комфортными стульями. Здесь же вдоль стены, обрамляя двустворчатую дверь, разместилась большая библиотека. Верхние полки шкафов снабжены скрытой подсветкой, а внизу есть выдвижная поверхность, заменяющая рабочую зону. Мягкий свет ламп создает особый уют в темное время суток. Белоснежные стены и предметы интерьера подчеркивают чистоту и визуально расширяют пространство.
В прихожей уголок ностальгии – современная ниша с подсветкой для сувениров. Они будоражат память и навевают приятные мысли об отдыхе и пережитых эмоциях. На входе в кухню состоящая из 9 блоков специальная доска, сделанная на заказ, для милых магнитиков. За ней спрятан один из люков, предоставляющих доступ к трубам.
Пространство небольшой ванной (5,4 ) расширено при помощи крупного зеркала. Оно отлично смотрится и позволяет прекрасной даме без особого труда следить за собой. Аксессуар выполнен в форме дверцы и прячет еще один канализационный люк.
Если и вам нужен дизайнер в Одинцово или Москве, то смело обращайтесь. Вместе мы сможем сделать дом по-настоящему уютным и комфортным.




