Работать над этим дизайн-проектом квартиры в Одинцово для нас было большим удовольствием. Обустраивать дом, в котором живет веселая семья из 3 троих замечательных детей и родителей очень приятно. Особенно, когда от главы семейства буквально исходят флюиды любви к своим ребятишкам. Именно поэтому в процессе создания интерьера мы чувствовали такую ответственность, хотелось максимально порадовать этих душевных людей.
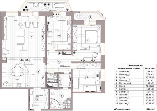
Трудились мы над обустройством квартиры в 150 м2. Получилась достаточно интересная планировка. В гостиной буквально можно играть в футбол, так много свободного пространства. А что еще нужно для семьи, где рядом с любящим отцом подрастают двое мальчишек? Визуальному расширению пространства поспособствовали и материалы в спокойных тонах, используемые для отделки: белоснежные потолки, бежевые стены и покрытие пола под светлое дерево. Все это отлично сочетается с мебелью и светильниками в классическом стиле, выбранными нами для обустройства дома. Никакой вычурности и излишеств, только строгие сдержанные линии, качественные материалы и атмосфера непередаваемого уюта.
Рядом расположилась большая кухня в 13 м2. Разграничить пространство нам удалось при помощи обеденной зоны. Здесь все члены семьи могут собираться для совместных ужинов и просто приятного общения.
Помимо этого, в квартире нашлось место для множества как личных, так и общих уголков:
- Органично оформленной спальни родителей.
- Отдельной комнаты для маленькой красавицы.
- Детской для мальчишек.
- Сауны, в которой можно отдохнуть и расслабиться после тяжелого трудового дня.
- Спортивной зоны для поддержания физической формы.
- Рабочего уголка для решения важных вопросов.
В общем, вышло настоящее семейное гнездышко, тихая пристань, где счастливым станет каждый.
Если и вы мечтаете преобразить свой дом, то загляните в портфолио дизайнера: Одинцово, Москва и область – наши основные места работы. Будем рады помочь с воплощением мечты.




